H o m e
  • A r c h i
  • D e s i g n
  • S c e n o
  • S k i l l s
  • C o n t a c t

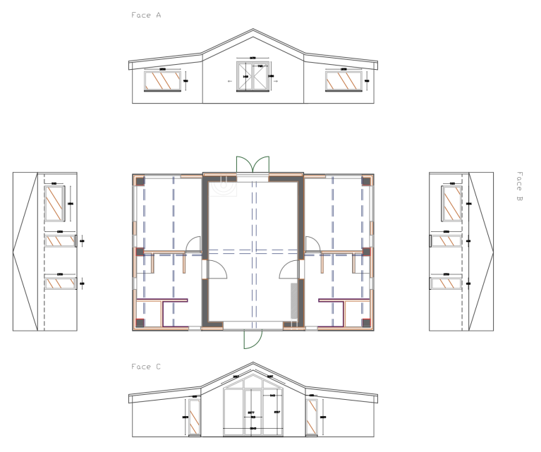
ARTIST RESIDENCE

 

 Garage project to be transformed into an artists' residence with two bedrooms + two bathrooms. Creation of a plan file, concept proposal, construction work specifications.