H o m e
  • A r c h i
  • D e s i g n
  • S c e n o
  • S k i l l s
  • C o n t a c t

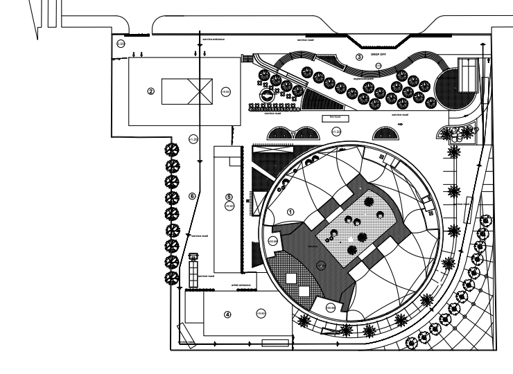
THE PHU THO_CIRCUS THEATER

 

Direction of the design, choice of interior and external materials of the future Circus Theater in Ho Chi Minh in Vietnam.

Collaboration with several study centers to build the project specifications for launching PUBLIC tenders.