H o m e
  • A r c h i
  • D e s i g n
  • S c e n o
  • S k i l l s
  • C o n t a c t

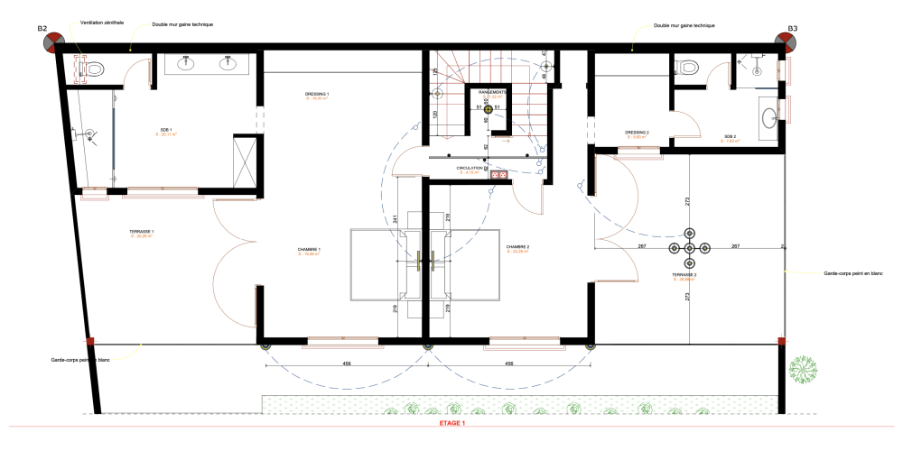
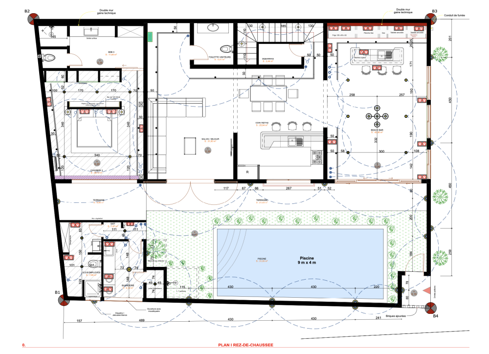
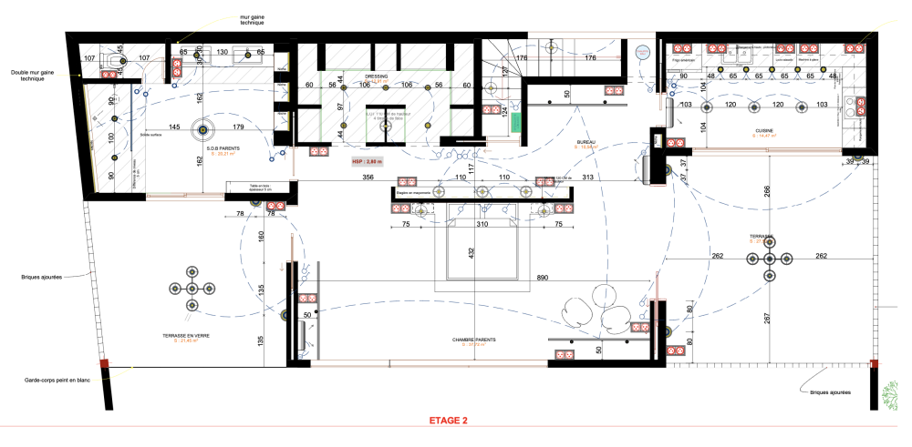
BAOBAB'S VILLA

  

Renovation of a villa and addition of a second floor in Saly, Senegal, for Nomads IC.

Creation of a textured 3D model with selected materials, serving as the basis for renovation documents, trade coordination, and electrical plan development.